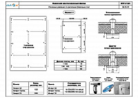
Фасадная система Doksal DVF-31(2) Light под Фиброцементные плиты

  • Описание системы
  • Документация к системе
  • Фотографии + чертежи + узлы
  • Комплектующие
Вентилируемые фасады системы DOKSAL предназначены для облицовки фасадов зданий и других строительных сооружений декоративным материалом и утепления стен с наружной стороны в соответствии с требованиями действующих норм по тепловой защите зданий.

Конструкции применяются для устройства навесных фасадных систем вновь строящихся и реконструируемых зданий и сооружений различных уровней ответственности, всех степеней огнестойкости и классов функциональной и конструктивной пожарной опасности по СНиП 21-01-97.

Серия DVF-31(2) предназначена для крепления фиброцементных панелей со скрытым креплением.

Вариант Light. Экономичный вариант для зданий с большими ветровыми нагрузками. Кронштейны крепятся в несущие стены зданий.

880d7350fbe68e305ba322122d7f0e27
880d7350fbe68e305ba322122d7f0e27
acfaf6a2bdf87a829dbd7729398c4266
acfaf6a2bdf87a829dbd7729398c4266
312689fcfcddbbff8f5f3bfbc44767e1
312689fcfcddbbff8f5f3bfbc44767e1
5a96bcda59ceb8df0cb0c2415bf522a9
5a96bcda59ceb8df0cb0c2415bf522a9
38654b117a4fd4d52269ee2d94f0da44
38654b117a4fd4d52269ee2d94f0da44
660a4f805052796388abbf487a0f2f9e
660a4f805052796388abbf487a0f2f9e
c234e1bc85fdbaaaa3aa4faaa6d65686
c234e1bc85fdbaaaa3aa4faaa6d65686
e546a0de565362e635b53ffff5377f69
e546a0de565362e635b53ffff5377f69
adb1ad10d5f3a78ff5de4333072aed7f
adb1ad10d5f3a78ff5de4333072aed7f
3d0e3cf9a4f8c5a4ff0a0bfd09376cd0
3d0e3cf9a4f8c5a4ff0a0bfd09376cd0
fda17e8fa813199ede1a2973c8d1bfad
fda17e8fa813199ede1a2973c8d1bfad
381cbad8ee1a835ee3299d722cbd6133
381cbad8ee1a835ee3299d722cbd6133
74438dd6cd4f7557fafc56ac6c34a421
74438dd6cd4f7557fafc56ac6c34a421
Закладные детали
Фото Наименование Артикул Единица измерения Цена (руб.)
Соединитель Н 100 шт. 101,00
Соединитель Н 80 шт. 84,00
Соединитель Н шт. 53,00
Закладная НТ 80 шт. 54,00
Закладная НТ шт. 36,00

Подняться к карте разделов

Кляммера для видимого крепления керамогранитной плитки
Фото Наименование Артикул Единица измерения Цена (руб.)
Кляммер одинарный 10-13мм AISI 430 1,2мм шт. 10,00
Кляммер одинарный 10-13мм AISI 430 1,0мм шт. 9,00
Кляммер одинарный 10-13мм AISI 201 1,2мм шт. 11,00
Кляммер универсальный 8-10мм AISI 430 1,2мм шт. 25,00
Кляммер универсальный 8-10мм AISI 430 1,0мм шт. 22,00
Кляммер универсальный 8-10мм AISI 201 1,2мм шт. 27,00
Кляммер угловой 8-10мм AISI 430 1,0мм шт. 13,00
Кляммер угловой 8-10мм AISI 201 1,2мм шт. 19,00
Кляммер угловой 10-13мм AISI 430 1,2мм шт. 15,00
Кляммер угловой 10-13мм AISI 430 1,0мм шт. 13,00
Кляммер угловой 10-13мм AISI 201 1,2мм шт. 19,00
Кляммер стартовый 8-10мм AISI 430 1,0мм шт. 14,00
Кляммер стартовый 8-10мм AISI 201 1,2мм шт. 18,00
Кляммер стартовый 10-13мм AISI 430 1,2мм шт. 16,00
Кляммер стартовый 10-13мм AISI 430 1,0мм шт. 14,00
Кляммер стартовый 10-13мм AISI 201 1,2мм шт. 18,00
Кляммер рядовой 8-10мм AISI 430 1,0мм шт. 21,00
Кляммер рядовой 8-10мм AISI 201 1,2мм шт. 29,00
Кляммер рядовой 10-13мм AISI 430 1,2мм шт. 24,00
Кляммер рядовой 10-13мм AISI 430 1,0мм шт. 21,00
Кляммер рядовой 10-13мм AISI 201 1,2мм шт. 29,00

Подняться к карте разделов

Комплектующие для крепления металлокассет
Фото Наименование Артикул Единица измерения Цена (руб.)
Уголок соединительный шт. 9,00
Компенсатор шт. 15,00
Пластина соединительная шт. 4,00
Икля правая шт. 10,00
Икля левая шт. 10,00
Зацеп шт. 8,00
Салазка Т2 под икли шт. 25,00
Салазка со втулкой и винтом шт. 60,00
Салазка под зацеп с винтом шт. 34,00
Салазка под зацеп с винтом шт. 54,00

Подняться к карте разделов

Комплектующие для крепления терракоты и скрытого крепления керамогранита

Подняться к карте разделов

Крепёж

Подняться к карте разделов

Кронштейны
Фото Наименование Артикул Единица измерения Цена (руб.)
Кронштейн MX 60x275 шт. 269,00
Кронштейн TM шт. 34,00
Кронштейн TL шт. 58,00
Кронштейн HM 220 шт. 243,00
Кронштейн HM 150 шт. 220,00
Кронштейн HL 220 шт. 453,00
Кронштейн HL 150 шт. 409,00
Кронштейн US 240 шт. 156,00
Кронштейн US 220 шт. 133,00
Кронштейн US 190 шт. 126,00
Кронштейн US 170 шт. 115,00
Кронштейн US 150 шт. 94,00
Кронштейн US 120 шт. 87,00
Кронштейн US 80 шт. 70,00
Кронштейн UM 240 шт. 206,00
Кронштейн UM 220 шт. 174,00
Кронштейн UM 190 шт. 165,00
Кронштейн UM 170 шт. 151,00
Кронштейн UM 150 шт. 123,00
Кронштейн UM 120 шт. 113,00
Кронштейн UM 80 шт. 90,00
Кронштейн UL 240 шт. 382,00
Кронштейн UL 220 шт. 320,00
Кронштейн UL 190 шт. 303,00
Кронштейн UL 170 шт. 278,00
Кронштейн UL 150 шт. 223,00
Кронштейн UL 120 шт. 203,00
Кронштейн UL 80 шт. 158,00
Кронштейн LX 60x275 шт. 467,00
Кронштейн S 60x240 шт. 87,00
Кронштейн S 60x220 шт. 69,00
Кронштейн S 60x190 шт. 61,00
Кронштейн S 60x170 шт. 53,00
Кронштейн S 60x150 шт. 48,00
Кронштейн S 60x120 шт. 41,00
Кронштейн S 40x150 шт. 41,00
Кронштейн S 40x120 шт. 36,00
Кронштейн S 40x100 шт. 33,00
Кронштейн S 40x80 шт. 30,00
Кронштейн S 40x80x2 шт. 25,00
Кронштейн S 40x60 шт. 26,00
Кронштейн M 60x240 шт. 117,00
Кронштейн M 60x220 шт. 92,00
Кронштейн M 60x190 шт. 81,00
Кронштейн M 60x170 шт. 69,00
Кронштейн M 60x150 шт. 62,00
Кронштейн M 60x120 шт. 53,00
Кронштейн M 40x150 шт. 53,00
Кронштейн M 40x120 шт. 46,00
Кронштейн M 40x100 шт. 41,00
Кронштейн M 40x80 шт. 37,00
Кронштейн M 40x80x2 шт. 31,00
Кронштейн M 40x60 шт. 32,00
Кронштейн D 60x240 шт. 162,00
Кронштейн D 60x220 шт. 126,00
Кронштейн D 60x190 шт. 111,00
Кронштейн D 60x170 шт. 96,00
Кронштейн D 60x150 шт. 86,00
Кронштейн D 60x120 шт. 73,00
Кронштейн D 40x150 шт. 73,00
Кронштейн D 40x120 шт. 62,00
Кронштейн D 40x100 шт. 56,00
Кронштейн D 40x80 шт. 50,00
Кронштейн D 40x60 шт. 43,00
Кронштейн L 60x240 шт. 219,00
Кронштейн L 60x220 шт. 171,00
Кронштейн L 60x190 шт. 149,00
Кронштейн L 60x170 шт. 130,00
Кронштейн L 60x150 шт. 116,00
Кронштейн L 60x120 шт. 98,00
Кронштейн L 40x150 шт. 99,00
Кронштейн L 40x120 шт. 84,00
Кронштейн L 40x100 шт. 75,00
Кронштейн L 40x80 шт. 67,00
Кронштейн L 40x80x2 шт. 56,00
Кронштейн L 40x60 шт. 57,00

Подняться к карте разделов

Термоизоляторы
Фото Наименование Артикул Единица измерения Цена (руб.)
Термоизолятор HM шт. 19,00
Термоизолятор HL шт. 35,00
Термоизолятор M 60 шт. 9,00
Термоизолятор L 60 шт. 15,00

Подняться к карте разделов

Удлинители
Фото Наименование Артикул Единица измерения Цена (руб.)
Удлинитель SD шт. 46,00
Удлинитель SM шт. 34,00
Удлинитель SL шт. 61,00
Удлинитель UM шт. 82,00
Удлинитель UL шт. 146,00
Удлинитель M 400 шт. 138,00
Удлинитель L 400 шт. 236,00
Удлинитель M 110 шт. 41,00
Удлинитель L 110 шт. 76,00

Подняться к карте разделов

Уплотнители
Фото Наименование Артикул Единица измерения Цена (руб.)
Уплотнитель узкий 36 мм (м.п.) шт. 16,00
Уплотнитель широкий 56 мм (м.п.) шт. 21,00

Подняться к карте разделов

Профили вспомогательные и декоративные

Подняться к карте разделов

Профили направляющие
Фото Наименование Артикул Единица измерения Цена (руб.)
Т-профиль 100х80х2 п. м. 553,00
H-профиль 100х45х1,6 п. м. 337,00
H-профиль 100x85x2,2 п. м. 721,00
H-профиль 100x50x2,2 п. м. 550,00
Т-профиль 60х80х2 п. м. 488,00
H-профиль 60х45х1,6 п. м. 274,00
H-профиль 60х105х1,5 п. м.
H-профиль 60х105х2,2 п. м. 716,00
H-профиль 60х95х1,5 п. м.
H-профиль 60х95х2,2 п. м.
H-профиль 60х85х1,5 п. м. 473,00
H-профиль 60х85х2,2 п. м. 667,00
H-профиль 60х50х1,5 п. м. 355,00
H-профиль 60х50х2,2 п. м. 503,00
Т-профиль 60х35х1,3 п. м. 140,00
Y-профиль 75х70х1,8 п. м. 274,00
Т-профиль 56х44х1,2 п. м. 136,00
Т-профиль 100х54х1,8 п. м. 259,00
Y-профиль 60х60х1,8 п. м. 220,00
Т-профиль 60х60х1,8 п. м. 204,00
Т-профиль 60х80х2,2 п. м. 269,00
L-профиль 38х54х1,7 п. м. 145,00
Т-профиль 70х50х1,6 п. м. 170,00

Подняться к карте разделов

Профили соединительные для композитных панелей

Подняться к карте разделов

Для вас предусмотрена скидка от базовых цен!
Отправить заявку

Другие фасадные системы под
Фиброцементные плиты

Заказать расчёт сметы. БЕСПЛАТНО!